
Brand New 11-Bed HMO – Coming Soon to Fulwood, Preston
Garstang Road, Preston – Moments from Royal Preston Hospital
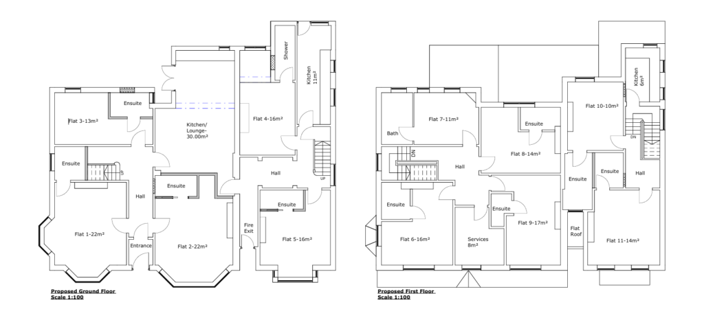
An exciting opportunity to secure one of eleven beautifully designed studio rooms in a brand new HMO development – ideal for working professionals looking for modern living in a prime Preston location.
Currently under construction, this contemporary HMO promises stylish, high-spec finishes throughout. Perfectly situated in Fulwood, just off Garstang Road, the property offers easy access to the Royal Preston Hospital, nearby amenities, and excellent links to the motorway network for commuters.
Property Features:
11 spacious studio bedrooms, each with a private ensuite
4 fully fitted communal kitchens with modern appliances
1 communal lounge – perfect for relaxing and socialising
A rear garden – great for outdoor breaks
Limited off-street parking
Floorplans available to showcase layout & room sizes
CGI images available to preview the finished look
Each room is individually designed with quality and comfort in mind – offering a private ensuite, modern interiors, and access to multiple communal spaces.
Whether you're a healthcare worker at the hospital or a commuter needing fast motorway access, this property ticks all the boxes.
Enquire today to register your interest and secure a room before completion!
Limited availability – Don’t miss out.









