This property is not currently available. It may be sold, let or temporarily removed from the market.

Chain House Lane, Whitestake

Interested in this property?

  • Make Enquiry
£2,750 pcm
  • Type: Detached House
  • Availability: Let Agreed
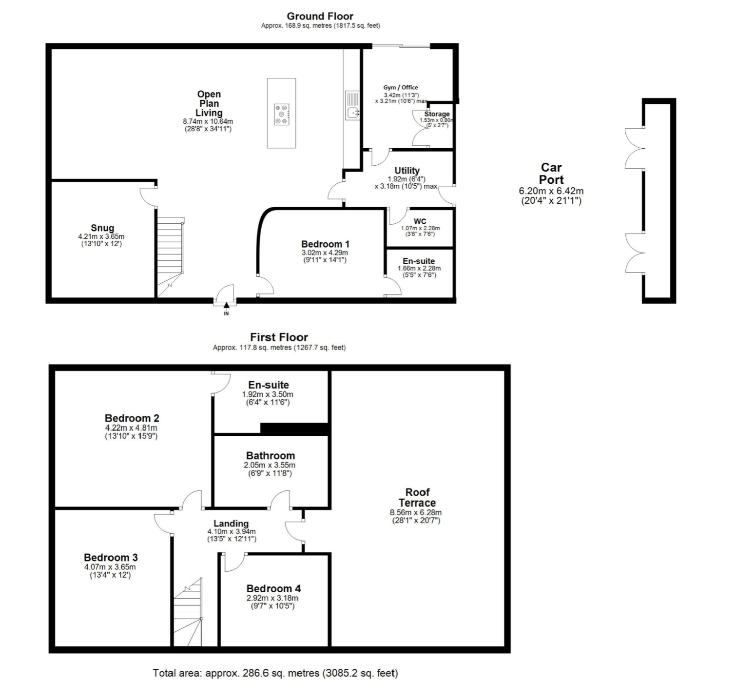
  • Bedrooms: 4
  • Bathrooms: 4
  • Reception Rooms: 3
  • Available: Now
  • Make Enquiry
  • Floorplan
  • Print Details

Property Summary

Nestled in the picturesque semi-rural setting of Whitestake, this architecturally designed detached home harmoniously combines the allure of countryside living with the convenience of nearby amenities. With an exceptional standard of craftsmanship and an array of premium features, this property is a testament to refined living.

Full Details

Nestled in the picturesque semi-rural setting of Whitestake, this architecturally designed detached home harmoniously combines the allure of countryside living with the convenience of nearby amenities. With an exceptional standard of craftsmanship and an array of premium features, this property is a testament to refined living.


The residence is ideally situated, offering a peaceful retreat from the hustle and bustle of the city, yet remaining just a stone's throw away from essential conveniences. Residents can relish the tranquility of the semi-rural surroundings while having quick access to local shops, schools, and transportation, making daily life effortlessly convenient.


Step inside, and you'll discover an interior that exudes sophistication and luxury. Every detail has been carefully considered, resulting in a high-specification interior that sets a new standard for elegance and comfort. Premium materials, impeccable finishes, and state-of-the-art amenities are seamlessly integrated throughout the home.


Set on a most substantial plot providing ample outdoor space, perfect for enjoying the natural beauty of the surroundings, gardening, or entertaining guests. The expansive grounds offer opportunities for various outdoor activities and potential for creating your own oasis in the midst of nature.


This architecturally designed detached home is more than a residence; it's a testament to refined living in a semi-rural paradise, with amenities at your doorstep and an interior that exemplifies luxury. For those who desire a blend of serenity, style, and convenience, this property beckons as the ideal place to call home."

Got a property to sell or let?

Selling or letting your home with Dewhurst Homes is fast, simple & stress-free.

Free Valuation